素材详情:
相关推荐
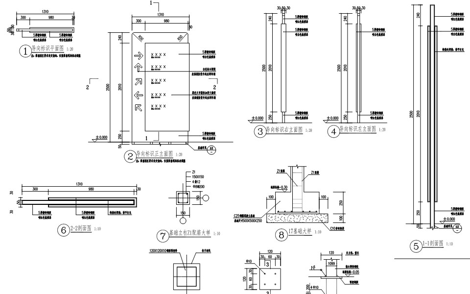
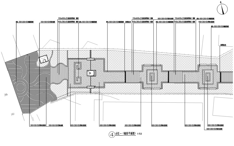
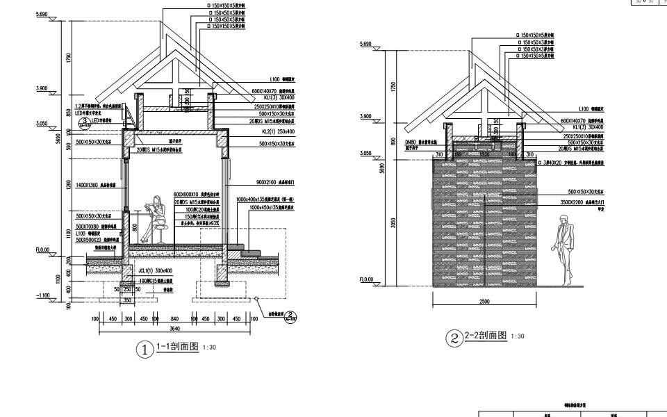
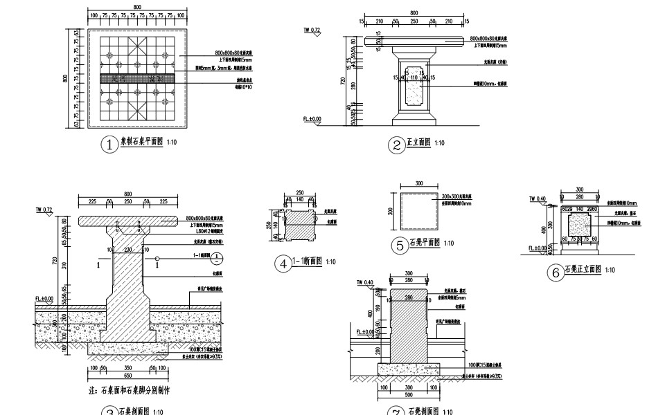
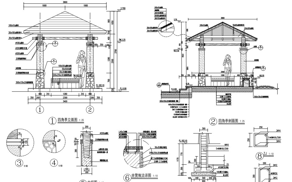
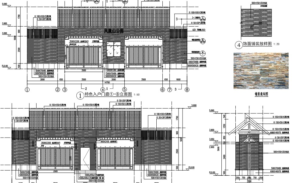
凤凰山公园景观提升施工图
类型
公建
上传者
景观之旅
ID
MJ000231
1积分
(登录账号领积分免费下载)
- 该素材为积分素材,登录后消耗积分可直接下载
- 该素材通过链接下载,如果下载失效,请联系我们
©免责声明
素材来自用户上传和本站原创,版权归原作者所有,本站只收取维护费用。素材仅供参考学习,若有版权争议请联系删除。
素材来自用户上传和本站原创,版权归原作者所有,本站只收取维护费用。素材仅供参考学习,若有版权争议请联系删除。

